

1-4 Castle Keep, Egremont CA22
Land (Residential)
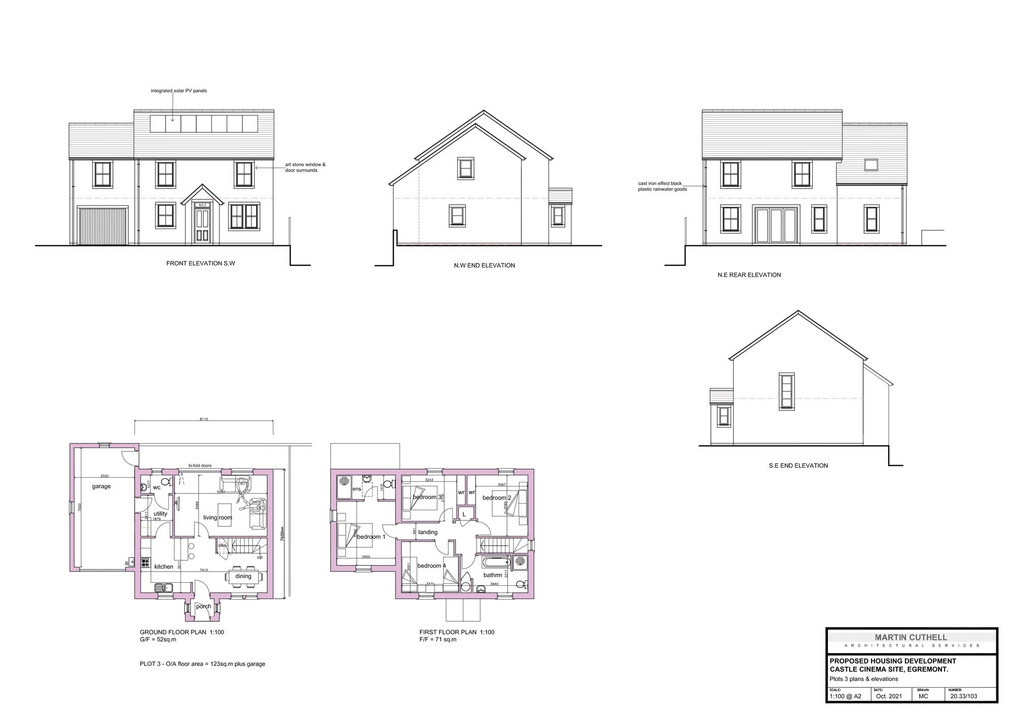
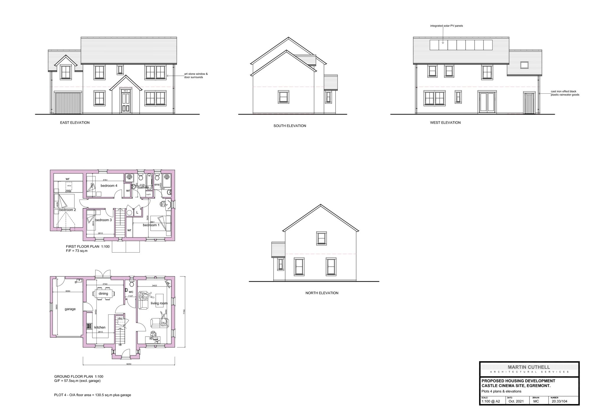
An exciting opportunity to acquire a development site with approved plans to build four detached homes, each with a minimum of two off-street parking spaces.
Located on the site of the former Castle Cinema, which was demolished in 2007 following approved planning permission, this location holds local history. The cinema originally closed in 1976 and was later used as a bingo hall and snooker club before its demolition.
This cleared site now offers excellent potential for a developer to bring forward a high-quality residential scheme in a well-established area of Egremont.
Planning Reference: 4/21/2485/0F1
Full plans and details can be viewed via the Copeland Borough Council planning portal.
PFK work with preferred providers for certain services necessary for a house sale or purchase. Our providers price their products competitively, however you are under no obligation to use their services and may wish to compare them against other providers. Should you choose to utilise them PFK will receive a referral fee: Napthens, Bendles LLP, Scott Duff & Co Property Lawyers/Conveyancing Service - completion of sale or purchase - £120 to £180 per transaction; Pollard & Scott/Independent Mortgage Advisors – arrangement of mortgage & other products/insurances - average referral fee earned in 2022 was £260.48; M & G EPCs Ltd - EPC/Floorplan Referrals - EPC & Floorplan £35.00, EPC only £24.00, Floorplan only £6.00; - Mitchells Co Ltd - £50 per property contents referral successfully processed (worth £300 or more) plus 5% introduction commission on the hammer price of any goods sold from that referral. All figures quoted are inclusive of VAT.
The site is easily located just off Egremont Main Street, directly opposite the castle. The postcode CA22 2FP will take you there, and a For Sale board has now been erected.
